SLHS New Motto Hotel

● These items have aspects that uniquely contribute to national or world history.

Future StratfordFutureDevelopmentsMasterPage.html

To return to Master page click on ‘Future Stratford’ above.

  1. Data Availability

  2. ● Full

  3. ● Partial

  4. ● None

Disclaimer

Whilst some care has been taken to check externally linked websites no responsibility is offered nor implied for the suitability, legality or reliability of content therein.

Statements are made here to the best of our knowledge. However no statement here should be regarded as irrefutable fact. Please contact us if you consider otherwise.

Scope

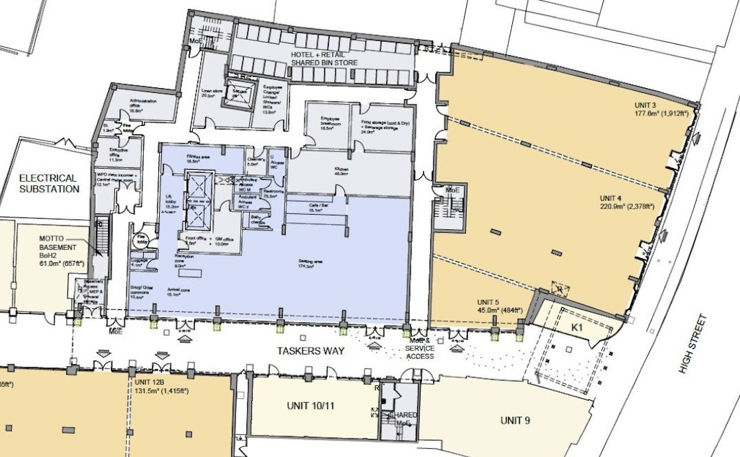
Hilton Group’s plans are now advanced for redeveloping the now closed Debenhams Department Store which was once JC Smiths (see p69 of the download of the history of Stratford High Street).

Interestingly there will be no Wood Street access (see ..Not Included below). This may become dwellings.

My dislike of brick frontages is further enhanced by the unbelievable missed opportunity to improve the 1970’s industrial look, which ‘The Jam Factory’ took to extreme, and is more at home on Timothy’s Bridge Road.

It’s quite a dense plan. Many have said that Stratford doesn’t need another hotel. Whilst the town does need lots of other things we ought to be grateful that the site isn’t gathering plagues of rats as the old BHS buildings have been. If their business plan can cope with the seasonal rise and fall of visitor numbers more rooms will inevitably lower hotel prices which in the summer are wild. We might even see new organisations planning to come here in the low season months.

It will, of course, provide revenue both directly though rates and indirectly by increasing visitor numbers, which given that quite a few retail outlets are currently closed, must be a good thing.

Further Information..

  1. Details of plan (download 3.4Mb):  ProposedMottoHotel_WasDebenhams.pdf

Wood Street Entrance Not Included

High Street

Last update: 19/12/2024

Created: 16/08/2024